Retour à la liste

MONTE - CARLO| CASABELLA | 3 PIECES

Monte-Carlo / Le Casabella

contacter l'agence Monaco Properties

Exclusivité

Vente

réf VM0822-3_260130-1008

Caractéristiques

Prix de vente5 000 000 €

Type de bienAppartement

Nb de pièces3

Chambre(s)2

Salle(s) de bain2

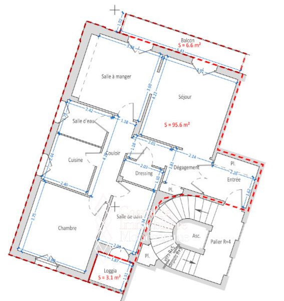
Superf. totale105.30 m²

Superf. terrasse9.70 m²

Étage4

Télécharger en PDF

Description

Vente avec réserve du droit d'usage et d'habitation; bel appartement traversant situé dans une résidence bourgeoise. Travaux à prévoir, idéal investisseur.

Casabella - Situé dans une élégante résidence bourgeoise à Monaco, cet appartement traversant se trouve le long du boulevard des moulins, offrant un accès facile à toutes les commodités, à la place du Casino ainsi qu'aux plages du Larvotto. Il bénéficie d'une agréable vue sur la place des moulins et la mer. L'appartement, qui peut être transformé en un quatre pièces, se distingue par ses beaux volumes et comprend :
- Hall d'entrée
- Salon
- Salle à manger
- Cuisine
- Toilettes invités
- Chambre de maître
- Salle de bains
- Garage fermé dans le parking public de la place des Moulins, en supplément pour 500'000 €
Il est actuellement occupé par une dame âgée de 95 ans

Monaco Properties

T. +377 97 97 33 97 info@mpmonaco.com https://www.monacoproperties.mc Voir tous les biens

Galerie Photos

Ce document ne fait partie d'aucune offre ou contrat. Toutes mesures, surfaces et distances sont approximatives. Le descriptif et les plans ne sont donnés qu'à titre indicatif et leur exactitude n'est pas garantie. Les photographies ne montrent que certaines parties de la propriété. L'offre est valable sauf en cas de vente, retrait de vente, changement de prix ou d'autres conditions, sans préalable.